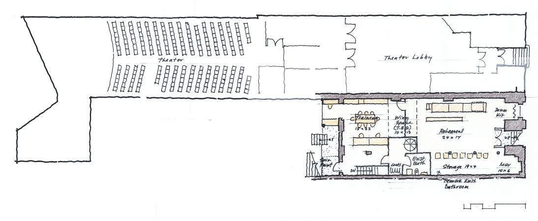
Broadway Studios
Committente: The Blue Man Group
Progetto e Direzione Lavori (con Arch. Tony Winters)
Importo: 2.800.000 $